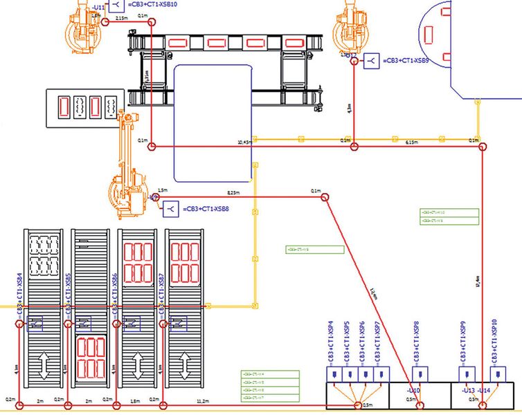
Verkabelung und Schaltschrankbau effizienter planen

Zurück zum Artikel