Die funktionale Sicherheit stellt auch Werkzeugmaschinenhersteller vor Herausforderungen bei der Konstruktion. Um unerwünschte Bewegungen während der Werkstückspannung sicher zu verhindern, hat Hawe Lösungen entwickelt, wie der Konstrukteur die geforderten Performance Levesl je nach Anforderung realisieren kann.
Hydraulische Spannvorrichtungen bieten viele Möglichkeiten, die Sicherheitsanforderungen nach DIN ISO 13849 zu erfüllen.
(Bild: Pixel_B - stock.adobe.com)
Die Werkstückspannung sorgt für die stabile Fixierung des Werkstücks in der spanenden Werkzeugmaschine. Während bei der Einzelstückfertigung die Spannkräfte meist durch mechanische Spannelemente aufgebracht werden, kommen hydraulische Spannelemente zum Einsatz, sobald die Fertigung vollständig oder teilweise automatisiert erfolgt.
Aufgrund der gesetzlichen Reglungen sowie insbesondere der ISO 13849 sind Werkzeugmaschinenhersteller dazu verpflichtet, Maschinen zu entwickeln, die eine Gefährdung des Bedienpersonals zuverlässig vermeiden. Technische Schutzmaßnahmen helfen, die von der Werkzeugmaschine potenziell ausgehenden Sicherheitsrisiken auf ein tolerierbares Maß zu reduzieren.
Performance Level für Gefahrenpotenziale bestimmen
Zwei Gefahrenpotenziale sind bei spanenden Werkzeugmaschinen von besonderer Bedeutung:
Zum einen das Herausschleudern des Werkstücks, wenn Spannkräfte während der Bearbeitung nicht sicher aufrechterhalten werden. Der Maschinenbediener oder andere Personen im Umfeld der Maschine könnten durch das herumfliegende Werkstück verletzt werden.
Zum zweiten die Gefahr, dass sich der Maschinenbediener bei der Bestückung der Maschine quetscht, weil sich das Spannelement während des Beladevorgangs unerwartet bewegt.
Für eine Sicherheitsbetrachtung gemäß ISO 13849 (funktionale Sicherheit) ist der erforderliche Performance Level (PLr) für diese beiden Gefährdungsarten zu bestimmen. Die Betrachtung hat für jede Anlage separat anhand eines Risikographs zu erfolgen.
Bestimmung des erforderlichen Performance Level
(Bild: HAWE Hydraulik SE)
Auch wenn die Sicherheitsbetrachtung für jede Werkzeugmaschine und jeden Einzelfall individuell durchzuführen ist, zeigt sich im praktischen Einsatz, dass die meisten Anwendungen einen PLr von „c“ oder „d“ erfordern. Betrachten wir deshalb exemplarisch einige hydraulische Schaltungen, die diese geforderten Performance Levels erfüllen.
Performance Level „c“ mit einfachen hydraulischen Schaltungen
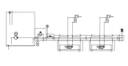
Performance Level "c" kann bereits mit einer einfachen hydraulischen Schaltung erreicht werden, beispielsweise wenn ein einfaches Spannaggregat mit zwei 4/2-Wege-Ventilen für zwei doppeltwirkende Spannzylinder verbaut wird. Da es sich um ein stationäres System handelt, kann davon ausgegangen werden, dass keine systembedingten internen Leckagen auftreten. Das Hydraulikaggregat kann im Abschaltbetrieb arbeiten. Ist der Betriebsdruck erreicht, schaltet das Aggregat ab. Eventuelle Verluste werden durch den Hydraulikspeicher ausgeglichen. Die dargestellten 4/2-Wege-Ventile sind so ausgeführt, dass der Zylinder bei Ausfall der Spannungsversorgung in die „Gespannt“-Stellung fährt.
Schaltbild eines Spannaggregats mit zwei 4/2-Wege-Ventilen für zwei doppeltwirkende Spannzylinder.
(Bild: HAWE Hydraulik SE)
Bei diesem Beispiel wurde die Gefährdung des Einquetschens nicht berücksichtigt, was aber bei einer automatischen Werkstückbeladung weniger relevant ist. Muss diese Gefahr jedoch zusätzlich abgesichert werden, kann das federrückstellbare 4/2-Wege-Ventil aus dem obigen Beispiel durch ein rastendes 4/2-Wege-Ventil ersetzt werden. Sowohl für die Gefahr des Herausschleuderns als auch für die Gefährdung durch Einklemmen/Einquetschen ergibt sich nun der Performance Level „c“, allerdings nur für die Richtung, die gerade geschaltet ist.
Ein Vorteil dieser Ausführung ist, dass der Speicher sowohl die geöffnete als auch die geschlossene Stellung unterstützt. Jedoch sind rastende 4/2-Wege-Ventile in der Ausführung als leckagefreie Sitzventile vergleichsweise teuer.
Der Performance Level „c“ lässt sich ebenfalls erreichen, wenn anstatt eines 4/2-Wege-Ventils ein 4/3-Wege-Ventil mit geschlossener Mittelstellung verwendet wird. Fällt die Spannungsversorgung aus, wird das Ölvolumen im Zylinder eingesperrt. Eine Bewegung ist nicht mehr möglich. An dieser Ausführung wiederum ist von Nachteil, dass Leckagen am Spannelement nicht mehr durch den Speicher ausgeglichen werden. Dann könnte sich die Werkstückspannung unter Umständen öffnen.
Performance Level
Für die Sicherheit gegen Herausschleudern: S2 - Da die hohe kinetische Energie des Werkstücks zu schweren Verletzungen führen kann. F1 - Da sich der Bediener nicht dauerhaft im gefährdeten Bereich aufhält. P1 - Da die Maschinenumhausung das sich lösende Werkstück voraussichtlich auffangen kann. Daraus ergibt sich ein erforderlicher Performance Level PLr = c
Für die Sicherheit gegen Quetschung: S2 - Da die Quetschung durch ein hydraulisches Spannelement zu einer irreversiblen Verletzung führen kann. F1 - Da der Bediener nur kurz am Spannmittel tätig ist. P2 - Da es kaum möglich ist, den Maschinenbediener gegen die Gefahr des sich Einklemmens/Einquetschens abzusichern. Daraus ergibt sich ein erforderlicher Performance Level PLr = d
Zweikanalige Schaltung für höheren Performance Level
Werden höhere Performance Levels als „c“ gefordert, ist ein zweiter Kanal erforderlich, der die Energiezufuhr im Fehlerfall abschaltet. Das kann auf zwei Arten erfolgen; entweder durch eine Sperrung des P-Kanals oder durch eine Drucklosschaltung.
Schaltbild für die Drucklosschaltung des P-Kanals.
(Bild: HAWE Hydraulik SE)
Das Ventil für die Betätigung der Spannfunktion (V2) wird um ein Ventil (V1) zur Sperrung bzw. Drucklosschaltung der P-Leitung ergänzt. Darüber hinaus wird die Funktion beider Ventile überwacht (S1, S2), damit eine eventuelle Fehlfunktion frühzeitig erkannt wird.
In Ventil V1 ist eine Stellungsüberwachung (S1) integriert. Mit dieser direkten Überwachung kann für die Berechnung der Sicherheitsfunktion ein Diagnosedeckungsgrad (DC-Wert) von 99 Prozent angenommen werden. Das Ventil für die Betätigung der Spannfunktion wird durch den Druckschalter in der A-Leitung indirekt überwacht; hier wird ein geringerer DC-Wert von 90 Prozent zugrunde gelegt. Beide Schaltungen erfüllen die gleiche Sicherheitsfunktion. Welche Schaltung aber für welchen Anwendungsfall die vorteilhaftere ist, ergibt sich aus deren spezifischen Eigenschaften.
Stand: 08.12.2025
Es ist für uns eine Selbstverständlichkeit, dass wir verantwortungsvoll mit Ihren personenbezogenen Daten umgehen. Sofern wir personenbezogene Daten von Ihnen erheben, verarbeiten wir diese unter Beachtung der geltenden Datenschutzvorschriften. Detaillierte Informationen finden Sie in unserer Datenschutzerklärung.
Einwilligung in die Verwendung von Daten zu Werbezwecken
Ich bin damit einverstanden, dass die Vogel Communications Group GmbH & Co. KG, Max-Planckstr. 7-9, 97082 Würzburg einschließlich aller mit ihr im Sinne der §§ 15 ff. AktG verbundenen Unternehmen (im weiteren: Vogel Communications Group) meine E-Mail-Adresse für die Zusendung von redaktionellen Newslettern nutzt. Auflistungen der jeweils zugehörigen Unternehmen können hier abgerufen werden.
Der Newsletterinhalt erstreckt sich dabei auf Produkte und Dienstleistungen aller zuvor genannten Unternehmen, darunter beispielsweise Fachzeitschriften und Fachbücher, Veranstaltungen und Messen sowie veranstaltungsbezogene Produkte und Dienstleistungen, Print- und Digital-Mediaangebote und Services wie weitere (redaktionelle) Newsletter, Gewinnspiele, Lead-Kampagnen, Marktforschung im Online- und Offline-Bereich, fachspezifische Webportale und E-Learning-Angebote. Wenn auch meine persönliche Telefonnummer erhoben wurde, darf diese für die Unterbreitung von Angeboten der vorgenannten Produkte und Dienstleistungen der vorgenannten Unternehmen und Marktforschung genutzt werden.
Meine Einwilligung umfasst zudem die Verarbeitung meiner E-Mail-Adresse und Telefonnummer für den Datenabgleich zu Marketingzwecken mit ausgewählten Werbepartnern wie z.B. LinkedIN, Google und Meta. Hierfür darf die Vogel Communications Group die genannten Daten gehasht an Werbepartner übermitteln, die diese Daten dann nutzen, um feststellen zu können, ob ich ebenfalls Mitglied auf den besagten Werbepartnerportalen bin. Die Vogel Communications Group nutzt diese Funktion zu Zwecken des Retargeting (Upselling, Crossselling und Kundenbindung), der Generierung von sog. Lookalike Audiences zur Neukundengewinnung und als Ausschlussgrundlage für laufende Werbekampagnen. Weitere Informationen kann ich dem Abschnitt „Datenabgleich zu Marketingzwecken“ in der Datenschutzerklärung entnehmen.
Falls ich im Internet auf Portalen der Vogel Communications Group einschließlich deren mit ihr im Sinne der §§ 15 ff. AktG verbundenen Unternehmen geschützte Inhalte abrufe, muss ich mich mit weiteren Daten für den Zugang zu diesen Inhalten registrieren. Im Gegenzug für diesen gebührenlosen Zugang zu redaktionellen Inhalten dürfen meine Daten im Sinne dieser Einwilligung für die hier genannten Zwecke verwendet werden. Dies gilt nicht für den Datenabgleich zu Marketingzwecken.
Recht auf Widerruf
Mir ist bewusst, dass ich diese Einwilligung jederzeit für die Zukunft widerrufen kann. Durch meinen Widerruf wird die Rechtmäßigkeit der aufgrund meiner Einwilligung bis zum Widerruf erfolgten Verarbeitung nicht berührt. Um meinen Widerruf zu erklären, kann ich als eine Möglichkeit das unter https://contact.vogel.de abrufbare Kontaktformular nutzen. Sofern ich einzelne von mir abonnierte Newsletter nicht mehr erhalten möchte, kann ich darüber hinaus auch den am Ende eines Newsletters eingebundenen Abmeldelink anklicken. Weitere Informationen zu meinem Widerrufsrecht und dessen Ausübung sowie zu den Folgen meines Widerrufs finde ich in der Datenschutzerklärung, Abschnitt Redaktionelle Newsletter.
Durch eine Drucklosschaltung der P-Leitung baut sich der Systemdruck ab, der im dargestellten Beispiel durch einen Speicher unterstützt wird. Abhängig von der Größe des Speichers sowie des Ventilverbands, kann der Druckabbau einige Sekunden dauern. In diesem Zeitraum ist theoretisch eine unerwünschte Bewegung der Spannzylinder möglich. Im Vergleich dazu kann eine Sperrung des P-Kanals beim Auslösen der Sicherheitsfunktion zur Folge haben, dass das Aggregat mit dem eingestellten Maximaldruck gegen das Druckbegrenzungsventil fördert. Dadurch kann es zu einer starken Ölerwärmung kommen. Deshalb ist in diesem Fall sicherzustellen, dass das Aggregat im Störfall abschaltet.
Mit beiden Aufbauten ist ein Performance Level „d“ erreichbar. Und selbst Performance Level „e“ ist möglich, wenn beide Ventile einen Diagnosedeckungsgrad von 99 Prozent aufweisen (Stellungsüberwachung) und gleichzeitig die MTTFD-Werte der verwendeten Bauteile hoch genug sind.
Wegesitzventil der Baureihe NBVP: Das Anschlussbild der Ventile entspricht Cetop 03 bzw. NG6. Eine einfache Integration ist damit auch in vorhandene Systeme möglich. Die Ventile sind leckagefrei und für Drücke bis 400 bar ausgelegt. Eine Stellungsüberwachung ist direkt integriert.
(Bild: HAWE Hydraulik SE)
Über den erforderlichen Diagnosedeckungsgrad verfügen beispielsweise Wegesitzventile der Baureihe NBVP von Hawe Hydraulik SE. Sie sind mit einem induktiven Näherungsschalter verfügbar, der die Schaltvorgänge des Ventils überwacht. Er meldet, ob der Schaltvorgang am Ventil erfolgt ist, und gibt damit zuverlässigen Rückschluss, ob die Ventilfunktion gegeben ist.
Weiterer Vorteil dieser Technik: Die Sicherungsfunktion bleibt unabhängig von der Anzahl der Schaltvorgänge erhalten. Da ein Näherungsschalter keine mechanischen Teile enthält, kann er nicht verschleißen. Ein turnusgemäßer Austausch entfällt.
Das Wegesitzventil Typ ROLV bietet aufgrund seines Aufbaus und der technischen Daten für Maximaldruck (400 bar) und Volumenstrom (25 l/min) einen breiten Einsatzbereich.
(Bild: HAWE Hydraulik SE)
Weiter interessant ist das neu entwickelte Wegesitzventil Typ ROLV von Hawe. Es kann direkt in Ventilverbände als flexibel aufbaubarer Steuerblock integriert werden. Anschlussblöcke für den direkten Rohrleitungseinbau sind ebenfalls verfügbar.
In Sachen Aggregat setzt Hawe auf modular aufgebaute Kompaktaggregate. Die neuste Baureihe ist der Typ INKA. Mit diesem Typ können aus dem Baukasten unterschiedliche Nutzvolumina und Förderströme einfach und schnell realisiert werden. Über ein breites Programm an Anschlussblöcken und den damit kombinierbaren, verketteten Ventilverbänden lassen sich leicht anschlussfertige Komplettlösungen zusammenstellen. Für Plug and play und damit fertig konfiguriert geliefert, können sie direkt, ohne eigenen Verrohrungsaufwand, in die Maschinen verbaut werden.
* Axel Grigoleit ist Key Market Manager Machine Tools, Astrid Vosberg ist Head of Corporate Communications bei der Hawe Hydraulik SE